Aktuelle Projekte der CAD Infrastruktur Wolfgang Rupp
Tiefbau und Siedlungswasserwirtschaft
Nachhaltige Planung, der Bau und der Betrieb von Wasserversorgungsleitungen sowie die Ableitung und Behandlung von Abwasser in urbanen und ländlichen Räumen unter Berücksichtigung einer hohen Lebensdauer und des Umweltschutzes.

Umfangreiche Analysen ermöglichen es, technische, wirtschaftliche und ökologische Aspekte optimal zu berücksichtigen.

  • Planung von Kanalneubau- und Sanierungsmaßnahmen
  • Straßenbauplanung
  • Planung und Instandhaltung von Versorgungsleitungen



  • Ausgewählte Projekte:

    Kanalneubau "Hauptstraße", 1. bis 6. Bauabschnitt


    Auftraggeber:

    Gemeinde Schiffweiler/ Landesbetrieb
    für Straßenbau

    Bauzeit:

    2023 - 2025

    Leistungsspektrum:

  • Planung
  • Ausschreibung
  • Bauüberwachung


  • Sanierung Verbindungssammler "Alte Eiweiler Straße"


    Auftraggeber:

    Gemeinde Nonnweiler

    Bauzeit:

    2023/2024

    Leistungsspektrum:

  • Planung
  • Ausschreibung
  • Bauüberwachung


  • Wasserleitung "In der Humes"


    Auftraggeber:

    Gemeinde Quierschied

    Bauzeit:

    2021/2022

    Leistungsspektrum:

  • Planung
  • Ausschreibung
  • Bauüberwachung


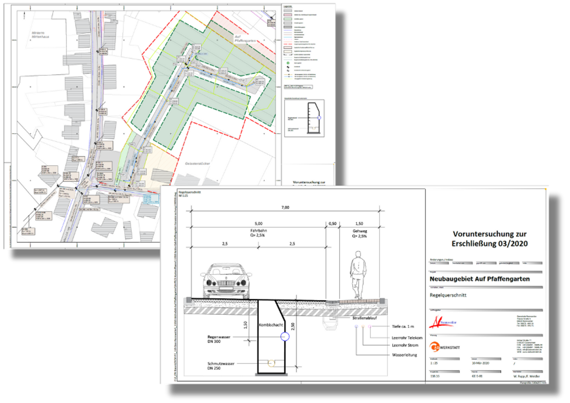
  • Neubaugebiet "Auf Pfaffengarten"


    Auftraggeber:

    Gemeinde Nonnweiler

    Bearbeitungszeitraum:

    2020

    Leistungsspektrum:

  • Voruntersuchung Erschließung
  • Planung Straßenbau
  • Planung Ver- und Entsorgung



  • Starkregenvorsorge und Hochwasserschutz
    Starkregenkonzepte sind unerlässliche Werkzeuge,
    um die Auswirkungen von Extremwetterereignissen
    zu verringern und den Schutz von Menschen, der Umwelt und Infrastruktur sicherzustellen.

    Hochwasserschutzmaßnahmen konzentrieren sich auf den Schutz
    vor länger anhaltenden Überschwemmungen durch Flüsse und Gewässer.

  • Risikobewertung

  • Regenwasserbewirtschaftung

  • Anpassung der Infrastruktur

  • Technischer Hochwasserschutz

  • Naturnaher Hochwasserschutz



  • Ausgewählte Projekte:

    Hochwasser- und Starkregenvorsorgekonzepte

    Auftraggeber:

    Gemeinden Nonnweiler, Nohfelden und Quierschied

    Bearbeitungszeitraum:

    2022 - 2024, 2024 - 2026 (geplant)

    Leistungsspektrum:

  • Berechnungen
  • Bürgerworkshops
  • Aufstellung Konzeption


  • Instandsetzung Retentionsbauwerk Kastel

    Auftraggeber:

    Gemeinde Nonnweiler

    Bauzeit:

    2019/2022

    Leistungsspektrum:

  • Planung
  • Ausschreibung
  • Bauüberwachung


  • Außengebietsentflechtung "Wennebruchstraße"

    Auftraggeber:

    Gemeinde Nonnweiler

    Bearbeitungszeitraum:

    2022

    Leistungsspektrum:

  • Planung
  • Hydraulische Berechnung
  • Aufstellung Konzeption



  • Freianlagenplanung
    Sowohl funktional als auch ästhetisch ansprechend.

    Moderne Außenanlagen sind nachhaltig und spielen eine entscheidende Rolle für den Klimaschutz.

    Sie dienen als Bindeglied zwischen Bebauung und natürlicher Umgebung.


    Ausgewählte Projekte:

    Platzgestaltung Selbach

    Auftraggeber:

    Gemeinde Nohfelden

    Bauzeit:

    2023/2024

    Leistungsspektrum:

  • Planung
  • Ausschreibung
  • Bauüberwachung


  • Wohnmobilstellplatz

    Auftraggeber:

    Gemeinde Nonnweiler

    Bauzeit:

    2025 (geplant)

    Leistungsspektrum:

  • Planung
  • Ausschreibung


  • Platzgestaltung Ortsmitte Wolfersweiler

    Auftraggeber:

    Gemeinde Nohfelden

    Bauzeit:

    2025

    Leistungsspektrum:

  • Planung
  • Ausschreibung
  • Bauüberwachung


  • Stützmauer "Mariengrotte"

    Auftraggeber:
    Gemeinde Nonnweiler

    Bauzeit:
    2019

    Leistungsspektrum:
  • Planung
  • Ausschreibung
  • Bauüberwachung


  • Projektsteuerung und SiGeKo
    Projektsteuerung bezeichnet den Prozess der Planung, Durchführung, Überwachung und Kontrolle von Projekten, um spezifische Ziele innerhalb eines festgelegten Zeitrahmens und Budgets zu erreichen. Die Bauüberwachung sorgt dafür, dass alle Arbeiten termingerecht und gemäß den festgelegten Qualitätsstandands ausgeführt werden.

    Der Sicherheits- und Gesundheitsschutzkoordinator (SiGeKo) ist dafür verantwortlich, dass alle erfolderlichen Sicherheitsmaßnahmen getroffen werden, um die Gesundheit und Sicherheit der Arbeiter und aller anderen Personen auf der Baustelle zu gewährleisten. Dies umfasst die Erstellung und Umsetzung von Sicherheits- und Gesundheitsschutzplänen sowie die Durchführung von regelmäßigen Sicherheitsunterweisungen.


    Ausgewählte Projekte:

    Grundhafte Erneuerung Quartier 1 und 3, Bauabschnitt 1

    Auftraggeber:

    Fa. Monti GmbH

    Bauzeit:

    2020-2022

    Leistungsspektrum:

  • Bestandserfassung
  • SiGeKo